CUAP Baix Vallès, in Santa Perpètua de Mogoda

CUAP Baix Vallès, in Santa Perpètua de Mogoda

Modular building for healthcare use

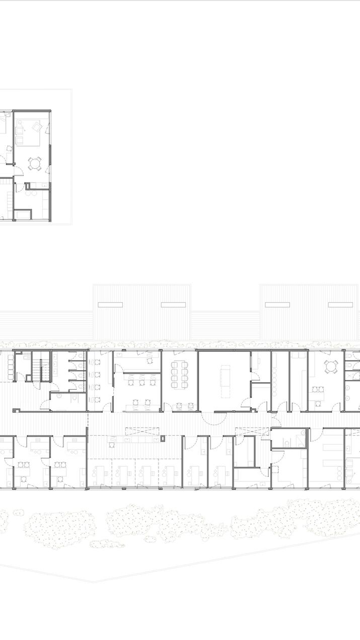
The CUAP Baix Vallés was designed using an industrialised modular system that made it possible to shorten the construction time to just 18 weeks. The project consists of 21 three-dimensional modules, with a total surface area of 900 m² on the ground floor, except for a small elevation for technical installations. The construction is based on the Lean Construction methodology to optimise time, resources and processes.

The building is organised into two distinct volumes: the main one, facing south on the plot, houses the care and treatment areas; the second, to the north, houses the Emergency Medical Service. Both bodies are connected by a covered porch, which facilitates access, the unloading of ambulances and the functional relationship between units.

The internal layout responds to a clear logic: a central circulation spine that articulates the spaces on both sides, arranged by degrees of privacy. Natural light and cross ventilation are guaranteed by façade openings and skylights, creating a bright and comfortable environment.

Promoter:Institut Català de la Salut
Surface:1.125 m²
Budget MEB:1.482.848 €
Ended:11/12/2023
Constructor:Constructora d'Aro
Prefabs:CompactHabit
Installations:FIA enginyeria d'instal·lacions
Structures:GENDICO
DEO:Enne Gestió
Lean management:AH3 Projects
Contest:First prize
Colaborators:

Modular industrialised construction

Because of the urgency of having the equipment available in a short period of time, a modular construction system with 21 three-dimensional prefabricated units was chosen. Thanks to the application of the Lean Construction methodology, on-site execution was limited to just 18 weeks, reducing interferences and ensuring quality and precision in assembly.

 

Organisation in two functional bodies

The building is made up of two independent volumes: the main one, located to the south of the plot, houses the Healthcare and Treatment areas; the secondary one, to the north, houses the Emergency Medical Service. A covered porch connects them, acting as an access point, ambulance circulation and logistical link between the two blocks.

 

Clear layout and programmatic hierarchy

The interior layout is organised along a central circulation spine. On both sides are the different spaces, arranged according to their level of privacy: from public areas to areas restricted to healthcare personnel. This functional clarity improves orientation, internal efficiency and the user experience.

 

Natural light as an element of comfort

Natural lighting and ventilation are guaranteed by openings in the façade and three skylights on the central axis. These light inlets provide ambient quality to waiting rooms, consultation rooms and common areas. The proposal seeks not only to meet technical needs, but also to offer a peaceful and hospitable environment.

 

Envelope system and formal expression

The complex is clad with micro-condulated metal sandwich panels, selected for their thermal behaviour, ease of assembly and sober architectural expression. The joints between modules are resolved on site to achieve a continuous reading. Elements such as perforated solar protection and integrated lighting reinforce the building's identity, generating a clean image that is adaptable to the surrounding light.