Reforma de una vivienda en la calle Comte Urgell

Reforma de una vivienda en la calle Comte Urgell

Nueva centralidad alrededor de la cocina

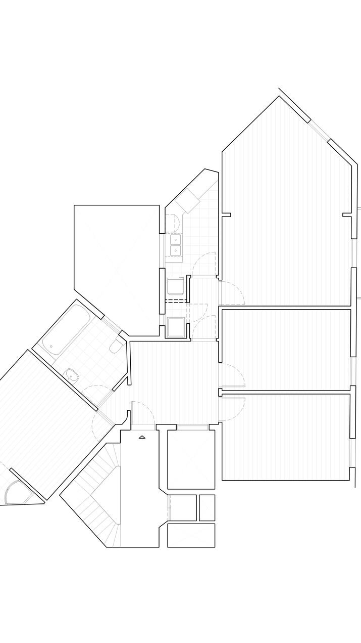
La reforma de esta vivienda de 113 m² en la calle Compte d'Urgell interviene en un piso situado en una finca catalogada del Eixample de Barcelona. El proyecto parte de la voluntad de mejorar la calidad espacial y funcional de la vivienda existente, manteniendo la estructura y los valores tipológicos, pero replanteando su organización interior.

La propuesta sitúa la cocina como centro de gravedad de la vida doméstica, convirtiéndola en el elemento a partir del cual se articulan el resto de espacios. Esta decisión permite eliminar recorridos y compartimentaciones innecesarias, transformando un esquema fragmentado en una secuencia de estancias más abiertas, relacionadas y flexibles.

La intervención no busca una transformación formal explícita, sino una actualización contenida que mejore las condiciones de habitabilidad: más luz natural, mejor ventilación, mayor continuidad espacial y una organización adaptada a las formas actuales de habitar.

Promotor:
Superficie:113 m²
Presupuesto PEM:71.880 €
Finalización:14/10/2023
Constructor:GrupoObra
Prefabricados:
Instalaciones:
Estructuras:
DEO:
Lean management:
Concurso:
Colaboradores:
Categorias:

Relectura de una vivienda existente

El proyecto parte de un piso del Eixample con una distribución tradicional, basada en pasillos largos y espacios excesivamente compartimentados. La estrategia consiste en reinterpretar esta tipología para adaptarla a las necesidades actuales, reorganizando los usos sin alterar la estructura esencial de la vivienda y potenciando sus cualidades originales.

 

La cocina como eje del proyecto

La reforma convierte la cocina en el núcleo organizador de la vivienda, dejando atrás su condición de espacio de servicio aislado. Desde esta nueva centralidad se conectan las zonas de día y de noche, integrando la circulación dentro de los espacios de uso y eliminando el pasillo como elemento residual. El resultado es una planta más fluida y funcional, adaptada a la vida cuotidiana contemporánea.

 

Luz, ventilación y continuidad espacial

La nueva distribución mejora el aprovechamiento de las dos fachadas de la vivienda, reforzando la entrada de luz natural y la ventilación cruzada. La conexión visual entre estancias amplía la percepción espacial y genera ambientes más confortables, demostrando que una reorganización interior puede transformar de manera significativa la calidad global del piso.